Description
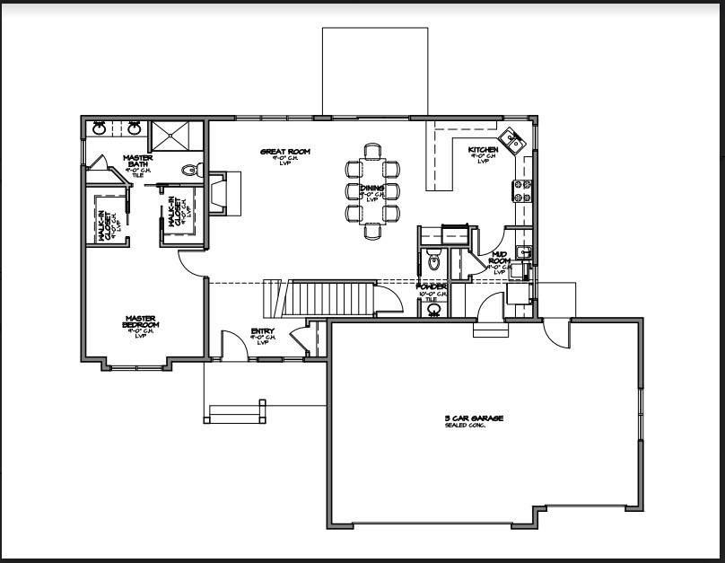
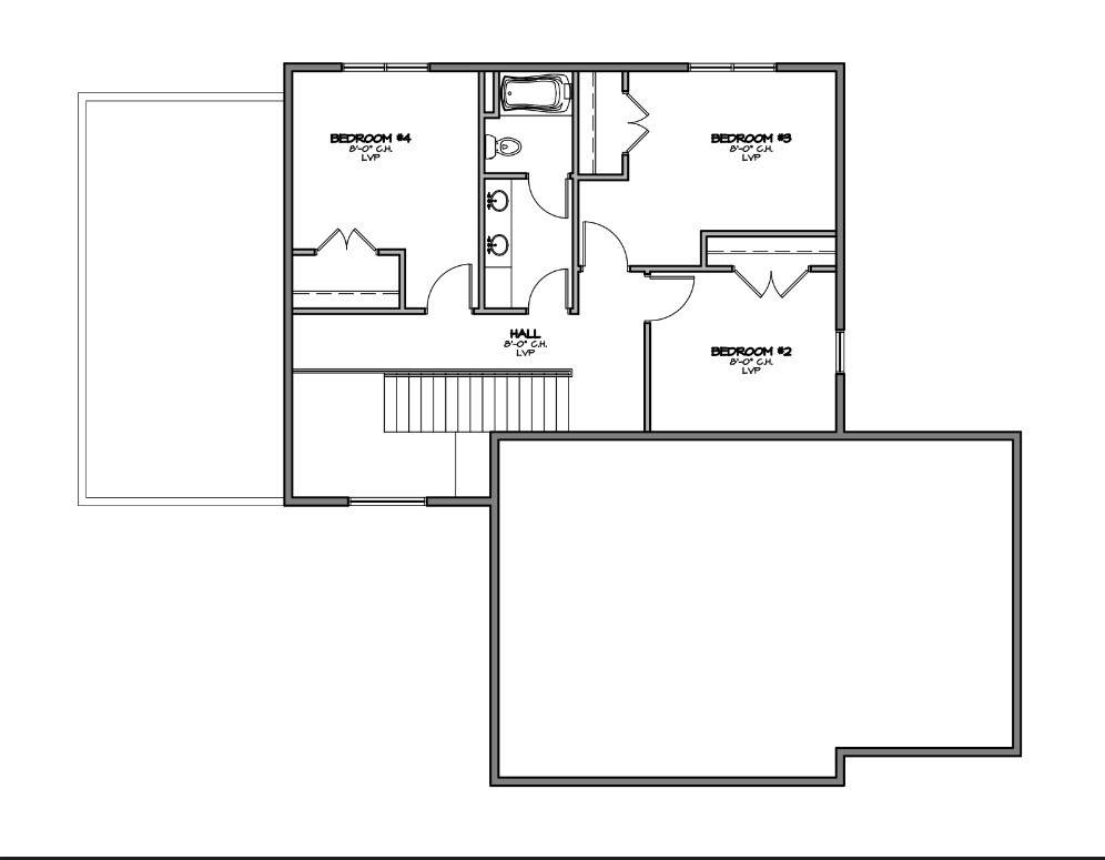
Proposed New Construction. Beautiful two story home with four bedrooms and two and a half baths. Main floor features an open floor plan with great room-dining-kitchen, master bedroom, master bath and a powder room. Mud room/laundry off the garage. Main floor master with 2 walk-in closets, double sinks and shower. Upstairs offers three bedrooms and a full bath. Main floor will be engineered hardwood, carpet upstairs, tile baths, tile master shower, granite throughout, pine molding and solid doors.
-
4BEDS
-
0.35ACRES
-
2BATHS
-
11/2 BATHS
-
2,400SQFT
-
$194$/SQFT
Description
Proposed New Construction. Beautiful two story home with four bedrooms and two and a half baths. Main floor features an open floor plan with great room-dining-kitchen, master bedroom, master bath and a powder room. Mud room/laundry off the garage. Main floor master with 2 walk-in closets, double sinks and shower. Upstairs offers three bedrooms and a full bath. Main floor will be engineered hardwood, carpet upstairs, tile baths, tile master shower, granite throughout, pine molding and solid doors.
© 2025 Midwest Real Estate Data LLC. All rights reserved. IDX information is provided exclusively for consumers' personal, non-commercial use and may not be used for any purpose other than to identify prospective properties consumers may be interested in purchasing. Information is deemed reliable but is not guaranteed accurate by MTP, MRED or Leila Keene & Marjorie Allabastro Team | Baird & Warner.
Based on information submitted to the MRED as of 2025-11-12T15:09:12.533 UTC. All data is obtained from various sources and has not been, and will not be, verified by broker or MRED. MRED supplied Open House information is subject to change without notice. All information should be independently reviewed and verified for accuracy. Properties may or may not be listed by the
office/agent presenting the information.
Some properties which appear for sale on this website may subsequently have sold and may no longer be available. NOTICE: Many homes contain recording devices, and buyers should be aware they may be recorded during a showing.
Digital Millennium Copyright Act
